Search a product :
Neues Produkt
| ErP 2015-konform Fan |
||
Absaugung von Rauch und heißen Gasen im Brandfall.
Absaugung verbrauchter Luft aus Dienstleistungs- und Industriegebäuden.
Installation für vertikale Absaugung.
Beschreibung
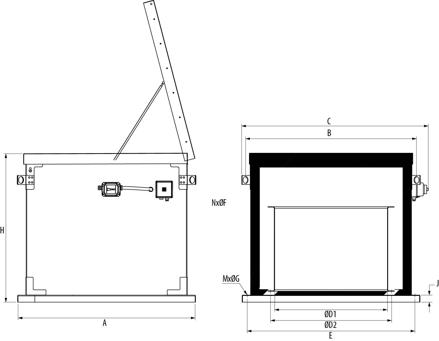
Maße
Dokumentation
Öffentlicher Preis
Software
Referenzen

| Schnitt | Modell | Abmessungen (mm) | |||||||||||
| HAT | H | B | VS | ØD1 | ØD2 | E | NICHT | F | M | G | J | ||
| 1 | 500 | 1076 | 1058 | 1032 | 1143 | 500 | 560 | 1009 | 12 | 12 | 4 | 14 | 50 |
| 560 | 560 | 620 | |||||||||||
| 630 | 630 | 620 | |||||||||||
| 2 | 710 | 1256 | 1058 | 1212 | 1325 | 710 | 770 | 1190 | 16 | 12 | |||
| 800 | 800 | 860 | |||||||||||
| 3 | 900 | 1455 | 1164 | 1412 | 1550 | 900 | 970 | 1390 | 16 | fünfzehn | |||
| 1000 | 1000 | 1070 | |||||||||||
| 4 | 1120 | 1704 | 1394 | 1662 | 1815 | 1120 | 1190 | 1640 | 20 | fünfzehn | |||
| 1250 | 1250 | 1320 | |||||||||||
Detaillierte Spezifikationen
Textkatalogseiten (CT)
Installationsanleitung
Installationsanleitung (NT)
Feuer- / Rauchabsaugungszertifikate
CE-Rauchabzugszertifizierung (CCCE)
Handelsdokumente
Handelsbroschüre (FCOM)
Detaillierte Spezifikationen
Textkatalogseiten (CT)
Installationsanleitung
Installationsanleitung (NT)
Feuer- / Rauchabsaugungszertifikate
CE-Rauchabzugszertifizierung (CCCE)
Handelsdokumente
Handelsbroschüre (FCOM)